2023年5月27、28日,2023年第四届交通建筑联合毕业设计《与水共生——城市综合交通系统与滨水空间体系复合互动发展研究》终期答辩及联合毕业设计研讨会在上海交通大学举办。由上海交通大学承办,来自北京交通大学、重庆交通大学、长安大学、华东交通大学、上海交通大学、西南交通大学等在内的全国9所高校(按首字母排序)的14组设计团队参加了现场活动。
5月27日晚,教师代表参加2023年交通建筑联合毕业设计研讨会,会议持续两小时(图1)。上海交大设计学院建筑学系主任刘杰、北京交通大学建筑与艺术学院前任院长夏海山、西南交通大学建筑学院执行院长沈中伟和长安大学建筑学院院长侯全华进行开幕致辞。会议重点研讨各校建筑学专业毕业设计课程(含联合毕设)的教学理念、体系和方法,展示了各校在建筑学专业人才培养方面的经验与成果,就历届联合毕业设计进行回顾与经验总结,探讨今后联合毕业设计的发展思路与建议。

图 1 联合毕业设计研讨会在上海交大闵行校区学术活动中心佩韦轩举办
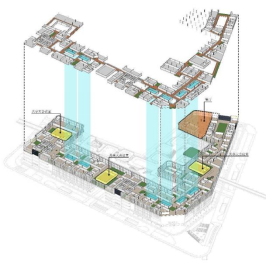
翌日,15位指导老师和40余位同学组成的共14组联合毕设小组齐聚现场,共分为三个分会场进行终期答辩。本次答辩充分展现了各校的教学特色,为各校师生提供了一个良好的学术交流平台。我校参加答辩的毕设是《青汇滨江,活力创城》(学生:朱金龙、胡圣屹、冯盈盈、张冰玉;指导教师:万煜敏、王金金),答辩学生以认真严谨的态度精心准备,评委教师充分肯定了我校学生的成果质量,同时在设计概念等方面提出了宝贵的意见(图2-3)。

图 2 我校学生代表在答辩现场进行汇报
图3. 我校学生方案部分图纸
下午由华建集团华东建筑设计研究院有限公司副总建筑师、教授级高工党杰和上海交通大学设计学院教授、阿科米星建筑设计事务所合伙创始人、主持建筑师庄慎为师生带来精彩的学术讲座(图4-5)。
图 4 党杰总建筑师《上海环球金融中心》的学术讲座现场
图 5 庄慎教授《学习设计的两点体会》的学术讲座现场
颁奖典礼暨闭幕式在设计大楼一楼进行。上海交通大学设计学院党委书记张丹丹对参与本次活动的各高校师生表示热烈欢迎,对莘莘学子表达了美好的祝愿。随后,各位专家为学生颁发获奖奖状(图7-图8),并进行合影。最后,长安大学的唐咏东老师代表参会师生表达了对本届联合毕设承办方——上海交通大学的感谢,并宣布下一届联合毕设由长安大学承办,对各兄弟院校表达了热烈欢迎。

图 6 获奖证书

图 7 部分现场答辩的师生合影
联合毕业设计活动圆满完成,来自全国各地各大高校的师生得此机会直面不同院校的教学特色和模式,感受到不同地域、不同院校的创新活力,开阔了教与学的视野,也为不同院校的合作、交流提供了良好的机会。
参加2023第四届全国交通建筑联合毕业设计终期答辩的高校:
■石家庄铁道大学-建筑与艺术学院(10107)
■上海交通大学-设计学院(10248)
■华东交通大学- 91直播
(10404)
■武汉理工大学-土木工程与建筑学院(10497)
■中南大学-建筑与艺术学院(10533)
■西南交通大学-建筑与设计学院(10613)
■重庆交通大学-建筑与城市规划学院(10618)
■长安大学-建筑学院(10710)
■兰州交通大学-建筑与城市规划学院(10732)
(以上排名不分先后,按照学校代码排列)
撰稿:王金金
校对:涂晗
审核:聂亦飞